Plaines du Loup

Logements subventionnés et PPE
Pièce urbaine D, Plaines-du-Loup, Lausanne

Projektwettbewerb 2019

Plaines du Loup – Logements subventionnés et PPE
Plaines du Loup – Logements subventionnés et PPE
Plaines du Loup – Logements subventionnés et PPE

Grundriss Erdgeschoss

Plaines du Loup – Logements subventionnés et PPE

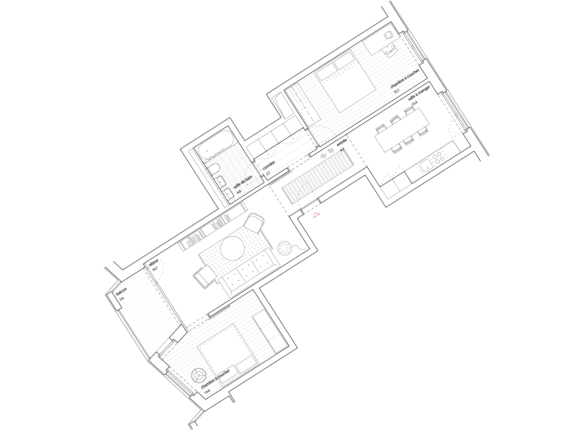
Grundriss Regelgeschoss

Plaines du Loup – Logements subventionnés et PPE

Grundriss Regelgeschoss

Plaines du Loup – Logements subventionnés et PPE
Plaines du Loup – Logements subventionnés et PPE
Plaines du Loup – Logements subventionnés et PPE
Plaines du Loup – Logements subventionnés et PPE